VENDITA APPARTAMENTO - GOITO - MONTEBELLO LIVORNO

                                                                                     
Goito - Montebello
codice riferimento: Rif.4531

  Condividi   Condividi

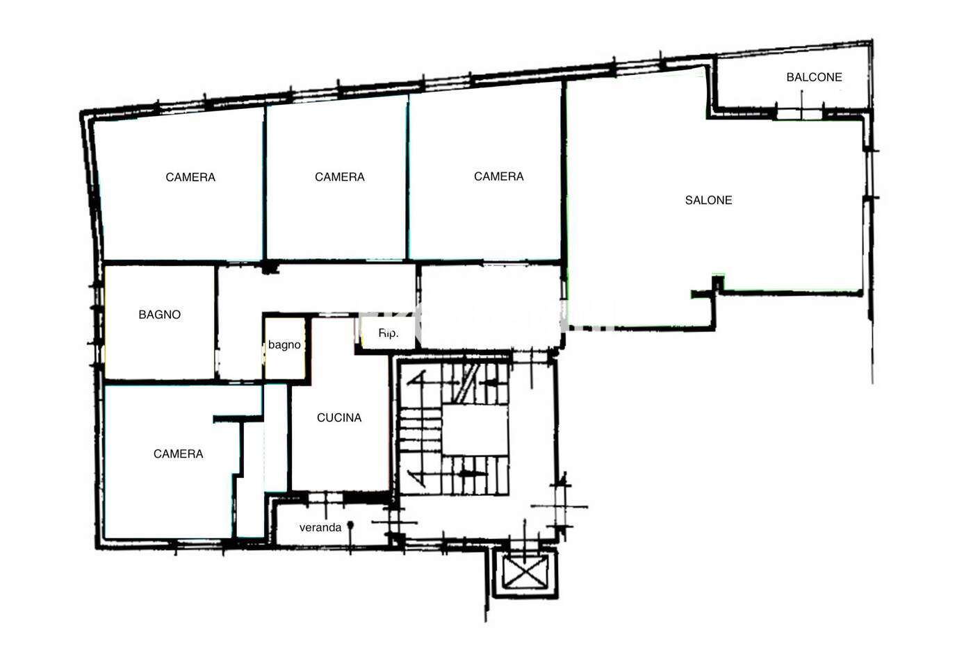
Rif. 4531 GOITO in ottima posizione residenziale, in elegante condominio con facciate recentemente rifatte, dotato di ascensore, offriamo luminoso appartamento di ampie dimensioni, 185 mq. L'immobile si presenta in buone condizioni, ottima la distribuzione interna di tipo classico, composta da un ampio ingresso, salone doppio ben finestrato con accesso a balcone, cucina con ripostiglio uso dispensa e balcone verandato, spazioso studio o quarta camera, 3 CAMERE di cui 2 grandi matrimoniali, una delle quali con cabina armadio ed una media, 2 bagni con possibilità di realizzarne un terzo. Infissi in Pvc doppio vetro. Completa la proprietà una CANTINA ed un GARAGE. (Classe D) La richiesta è di euro 349.000




2 bagni, 3 o più camere, Ascensore, Balconi, Cantina, Cucina, Garage, Salone doppio, Termocentrale.
 
 
Piano: 1/6
Superficie: 185 mq
Classe: D
Condominio: € 180,00
Prezzo: € 349.000,00


Torna alla ricerca Richiedi informazioni