VENDITA INDIPENDENTI - OSPEDALE LIVORNO

                                                                                                                                                                                   
Ospedale
codice riferimento: Rif.4511

  Condividi   Condividi

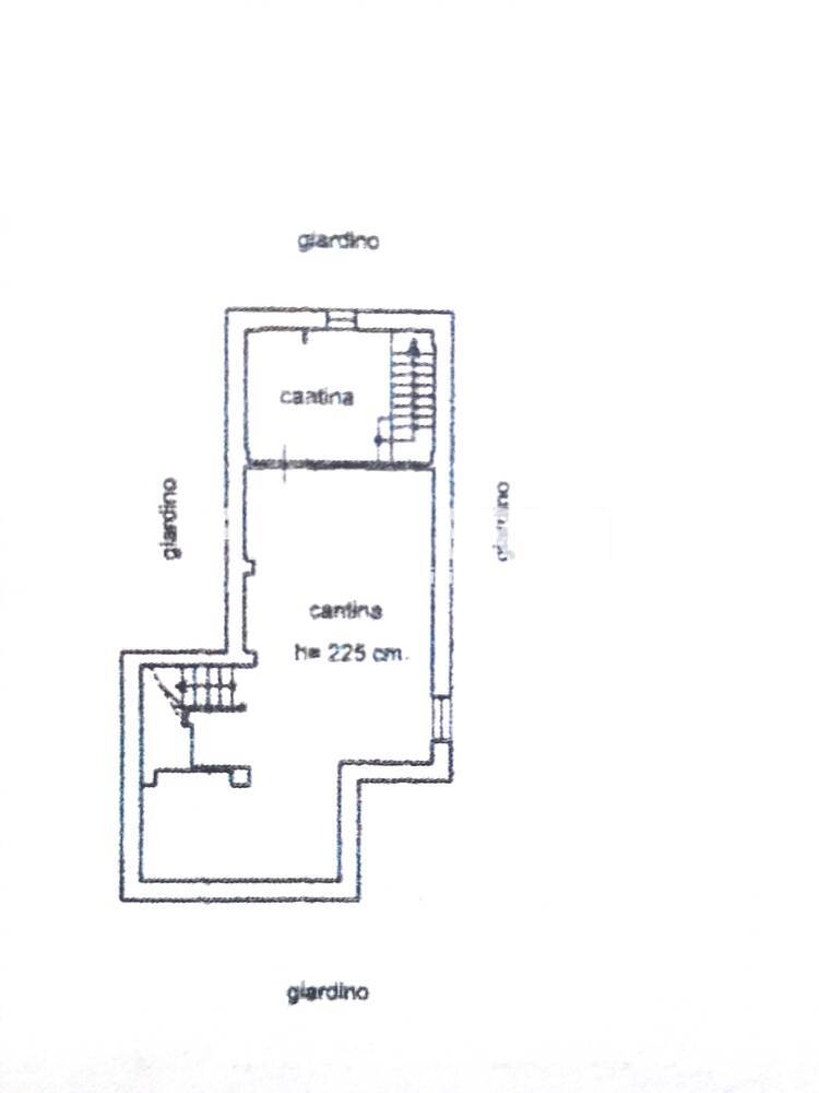
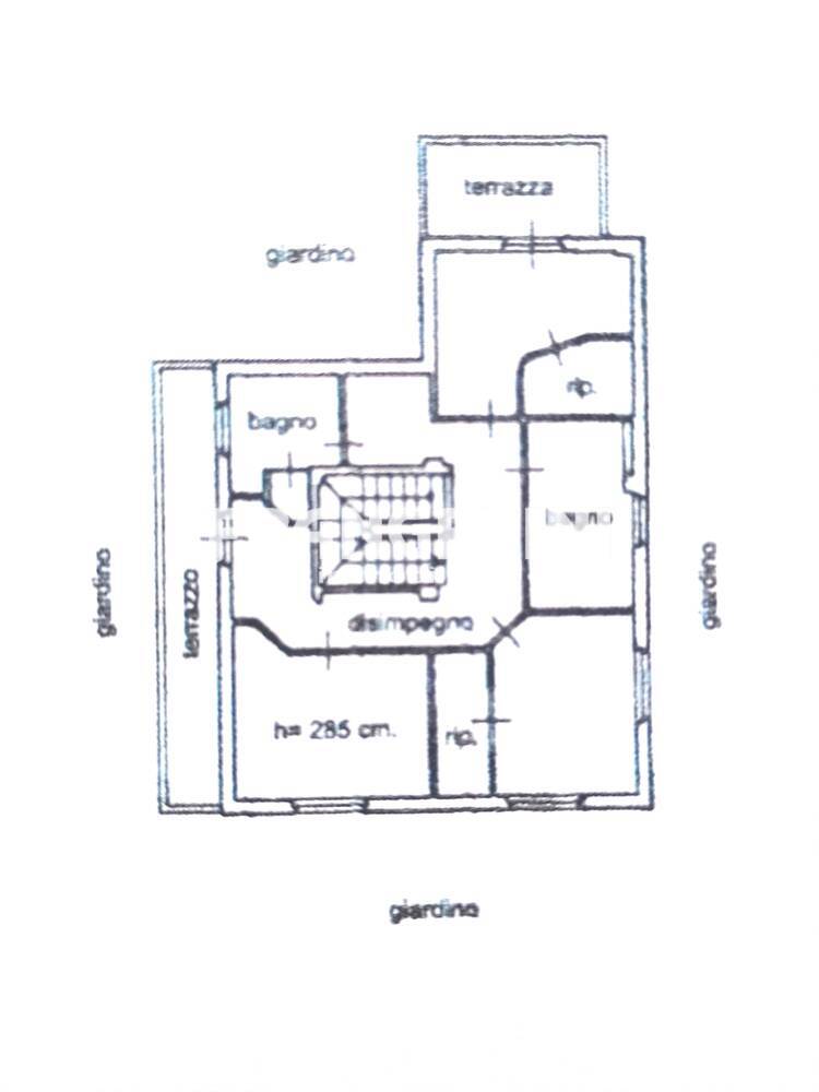
Rif. 4511 OSPEDALE - VILLA INDIPENDENTE CON GIARDINO E GARAGE - In zona ospedale proponiamo in vendita villa di circa 330 mq libera su quattro lati con Giardino di circa 500mq, in perfette condizioni con ottime finiture, disposta su due piani oltre Taverna e sottotetto. (Progetto per poterla dividere in due o tre appartamenti). Al piano terra troviamo un salone triplo molto luminoso, sala pranzo con camino funzionante, spaziosa cucina abitabile a vista con accesso a Patio che affaccia sul giardino, bagno con finestra e lavanderia. Al primo piano troviamo 3 Camere matrimoniali, studio, cabina armadio, spazioso balcone, Terrazza abitabile e 2 bagni con finestra. IL Patio affaccia direttamente sul giardino perimetrale che si presenta in parte a verde ed in parte piastrellato. La Taverna è attrezzata in locale ricreativo con bar in muratura, locale tecnico e comoda Cantina con accesso anche dal giardino. Completa la proprietà un GARAGE di 28 mq, con passo carrabile dal giardino. Reale possibilità di usufruire della mansarda. L'immobile ha il riscaldamento autonomo ed è climatizzato.(classe E - ipe 173,57) La richiesta è di euro 765.000




2 o più bagni, 3 o più camere, Balconi, Cantina, Cucina, Garage, Garage e posto auto, Giardino, Posto auto, Posto moto e bici, Sala, Salone doppio, Studio, Termoautonomo, Terrazza abitabile.
 
 
Piano: terra/1
Superficie: 330 mq
Classe: E
Ipe: 173,57 kwm2
Prezzo: € 765.000,00


Torna alla ricerca Richiedi informazioni