VENDITA INDIPENDENTI - MONTENERO LIVORNO

                                                                                       
Montenero
codice riferimento: Rif.4440

  Condividi   Condividi

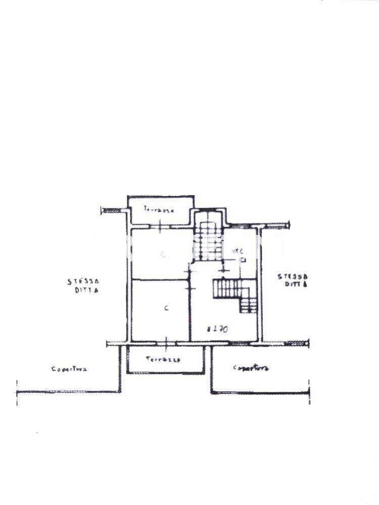
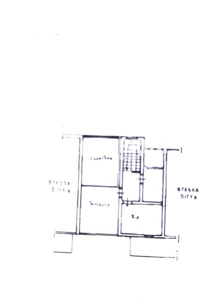
Rif. 4440 MONTENERO Villetta a schiera libera su due lati con GIARDINO fronte retro. L'immobile si sviluppa su tre livelli e si presenta in buonissime condizioni. Al piano terra rialzato troviamo un salone doppio con camino ed accesso al giardino, una cucina abitabile ed un bagno; comoda per accesso al piano superiore, che comprende 2 Camere matrimoniali entrambe con balcone, bagno con finestra ed ampio ripostiglio. Al piano mansardato un open-space ideale come terza camera, studio, sala hobby o zona relax con accesso a Terrazza abitabile e balcone. Completa la proprietà un GARAGE ed un POSTO AUTO con colonnina ricarica elettrica. Il riscaldamento è autonomo. (classe F) La richiesta è di euro 570.000




2 bagni, 3 o più camere, Balconi, Cucina, Garage, Giardino, Sala, Salone doppio, Termoautonomo, Terrazza abitabile.
 
 
Piano: terra/1
Superficie: 160 mq
Classe: G
Condominio: € 137,00
Prezzo: € 570.000,00


Torna alla ricerca Richiedi informazioni