VENDITA ULTIMO PIANO - CENTRO LIVORNO 
			
			
	
			
			
			
			
			
			
						
			
				
					Centro
					codice riferimento: Rif.4435
					
					
					
					  Condividi
					
					  Condividi
					
					
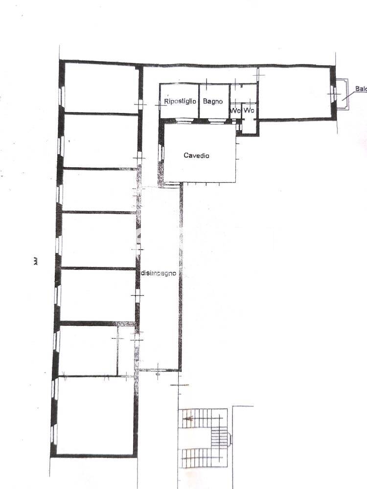
					Rif. 4435 NEL CUORE DELLA CITTA' In palazzo d'epoca ben tenuto, dotato di ascensore, proponiamo immobile posto all'ultimo piano, di ampia metratura, circa 250 mq, attualmente adibito ad ufficio, con possibilità di cambio destinazione d'uso in civile abitazione. L'immobile è composto da un ampio corridoio che da accesso a diverse stanze pluriuso. Soffitti molto alti con possibilità di soppalcare, sfruttando il sottotetto ed ottenendo due piani regolari. L'ampia metratura permette anche la possibilità di frazionare in più soluzioni immobiliare. Ideale anche come investimento per locazione ad uso uffici a professionisti o franchising. (classe G) La richiesta è di euro 250.000
				
 
			 
			
   
	
	
	
	
	
					2 bagni, 3 o più camere, Ascensore, Termoautonomo, Ultimo piano.		
		
		
	
	
 
	 
	
	
	
	
	 
	
	
		
	
	
	
		| Piano:  | 3/3 | 
	
		| Superficie:  | 250 mq | 
	
		| Classe:  | G | 
			
		| Prezzo:  | € 250.000,00 | 
			
	
	
	 	
		
	
	
	
		 
		 
	
	
	
	 
	
	
		
	Torna alla ricerca
	
	Richiedi informazioni