VENDITA APPARTAMENTO - MONTENERO BASSO LIVORNO

                                 
Montenero Basso
codice riferimento: Rif.4426

  Condividi   Condividi

Rif. 4426 VILLA OMBROSA - ESCLUSIVI APPARTAMENTI DI LUSSO IN VILLA STORICAIl Progetto:
L'intervento di ristrutturazione dell'immobile ha la finalità di realizzare undici unità immobiliari di prestigio e contemporaneamente restituire all'edificato la salubrità e le finiture andate perdute in anni di mancata manutenzione e di interventi stilisticamente errati.

Le unità immobiliari:
L'intervento prevede la realizzazione di undici unità immobiliari riunite in un condominio dotato di una parte del vasto parco attualmente esistente, circa 17.000 mq.; l'accesso sarà dal cancello carrabile presente sulla via Ombrosa.
Il parco sarà probabilmente dotato di attrezzature sportive come un campo da padel, e di un ampio parcheggio alberato in modo da garantire i posti auto per ogni appartamento.
Le quattro unità immobiliari poste al piano terreno avranno una porzione di tale parco ad uso esclusivo.
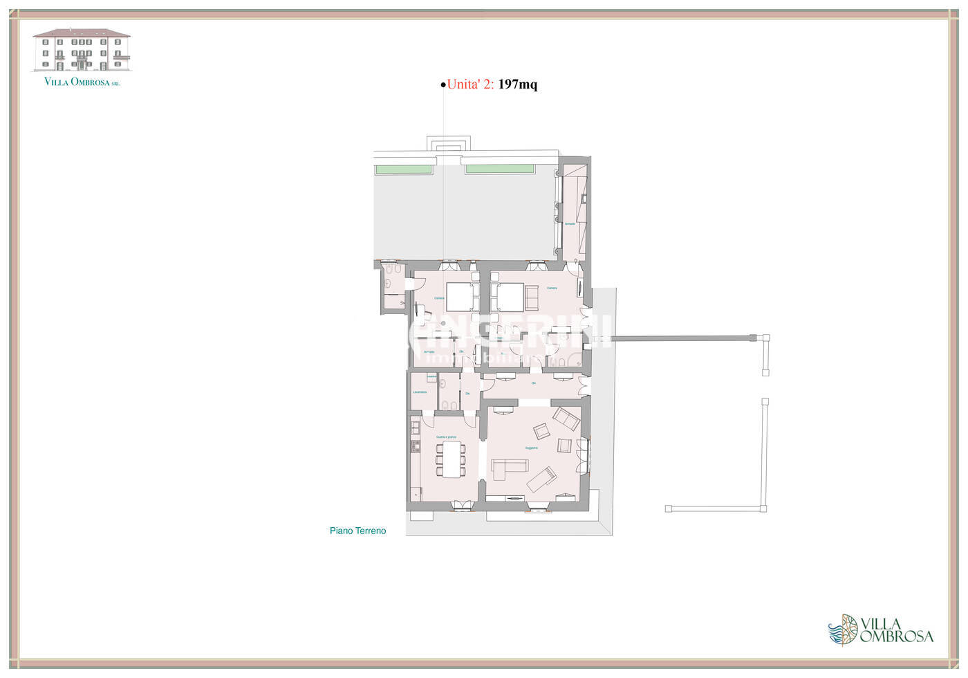
Nella villa si troveranno le due unità immobiliari più grandi:
la n° 1 posta al piano terreno nel lato sinistro della villa con superficie lorda pari a 275 mq. ed un giardino di circa 1200 mq., dotata di tre camere, quattro bagni, un salone di ben 50 mq., sala da pranzo e cucina.
la n° 2 posta anch'essa al piano terreno della villa ma nel lato destro con superficie lorda pari a 192 mq. e circa 600 mq. di giardino, composta da due camere, due bagni, una zona soggiorno più cucina-pranzo di 58 mq. netti complessivi.

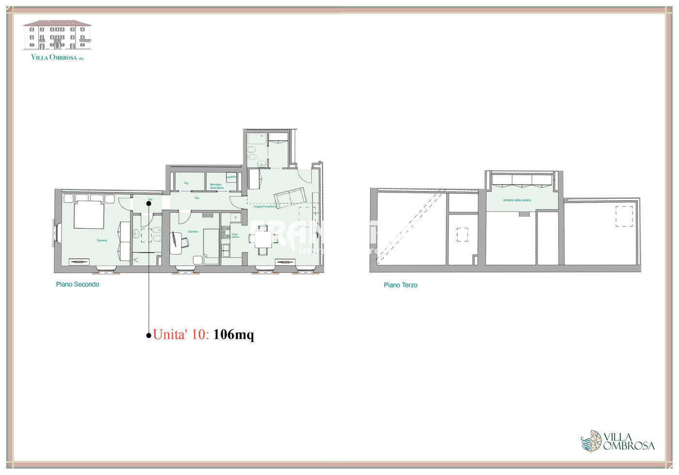
Ai piani superiori della villa e nell'ala laterale si troveranno altri nove appartamenti, tutti tra i 171 mq. e i 98 mq. lordi, caratterizzati così come le unità del piano terreno da ampie stanze con elevata altezza tipiche di immobili storici; gli appartamenti posti al secondo piano avranno soggiorni a doppia altezza su cui si affacceranno i locali del piano sottotetto accessibile con
scala interna ad ogni unità immobiliare.
Gli impianti, gli infissi e le finiture interne di ogni unità mireranno a garantire il rispetto della storicità dell'immobile ma contemporaneamente assicureranno il massimo comfort delle abitazioni contemporanee. TRATTATIVA RISERVATA




2 o più bagni, 3 o più camere, Ascensore, Balconi, Cantina, Cucina, Giardino, Posto auto, Sala, Salone doppio, Studio, Termoautonomo, Terrazza abitabile, Ultimo piano.
 
 
Superficie: 275 mq
Classe: G
Prezzo: Trattativa riservata


Torna alla ricerca Richiedi informazioni